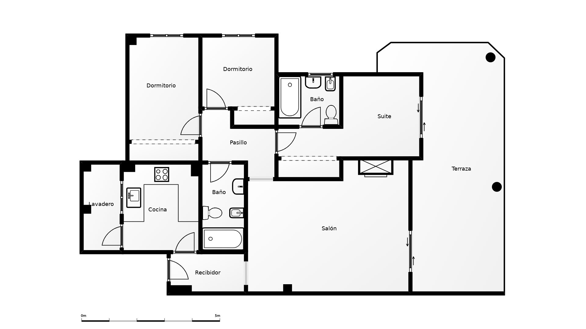
Gelegen in een van de meest exclusieve en veilige wooncomplexen van Altea, biedt dit appartement een perfecte combinatie van ruimte, licht en elegantie in een bevoorrechte natuurlijke omgeving. Met een woonoppervlakte van 125 m² beschikt het over een woon-eetkamer met open haard, een aangenaam terras met open uitzicht en een indeling die comfort ga...randeert, zowel voor dagelijks gebruik als voor vakanties.
Bij binnenkomst wordt u begroet door een ruime en lichte woon-eetkamer met een ingebouwde open haard die een warme en verfijnde toets geeft en direct uitkomt op het terras, een ideale plek om het hele jaar door te genieten van het mediterrane klimaat. De aparte keuken is praktisch en functioneel en beschikt over een bijkeuken met extra opberg- en werkruimte.
Het appartement heeft drie slaapkamers, waaronder een master suite, en twee complete badkamers. Het terras en balkon zorgen ervoor dat u op elk moment van de dag kunt genieten van de natuurlijke omgeving van het complex, licht en rust.
De woning beschikt over een genummerde parkeerplaats, een aanzienlijke meerwaarde in een woonwijk van dit kaliber. De gemeenschappelijke ruimtes beschikken over prachtig aangelegde tuinen en een zwembad dat uitnodigt tot ontspanning en plezier in een exclusieve omgeving.
Het appartement verkeert in uitstekende staat en is instapklaar, waardoor het een ideale keuze is voor zowel permanente bewoning als voor wie op zoek is naar een vakantiehuis of een kwaliteitsinvestering. De locatie biedt privacy, veiligheid en een bevoorrechte omgeving, zonder dat dit ten koste gaat van de nabijheid van voorzieningen, stranden en het centrum van Altea.