Appartement te koop in Benidorm voor € 440.700 (BENI0219-20A)

Nieuwbouw appartementen in Benidorm - Levante

440.700 €
Ref. BENI0219-20A
Benidorm, Alicante Kaart weergeven

Basisfuncties

m<sup>2</sup> behuizing
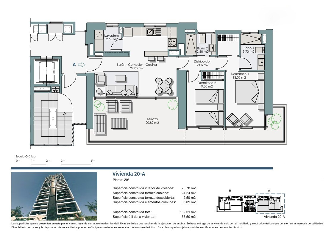
71 m2 behuizing
Slaapkamers
2 Slaapkamers
Badkamers
2 Badkamers
Afstand tot de zee
Strand op 1 km
Garage / Parkeren
Garage / Parkeren
Terrassen
24 m² terras
Gemeenschappelijk zwembad
Tuin
Lift
Wasruimte
Apparaten
Airconditioning
Dubbel glas

Beschrijving

Wil je meer informatie? Minder informatie
Ontdek een uniek residentieel concept bestaande uit 44 luxe woningen verdeeld over een indrukwekkend gebouw van 22 verdiepingen. Slim Tower valt op door zijn innovatieve architectuur met elegante en moderne lijnen, strategisch gelegen in een bevoorrechte zone van Benidorm, naast de prestigieuze Lope de Vega-school en het IMED Levante-ziekenhuis. El...

Locatie

Benidorm, Alicante
Ben je geïnteresseerd in deze woning en wil je meer informatie?

Uw hypotheek simuleren

Resterende niet-gefinancierde prijs
00,00 €
Kosten bij benadering:
00,00 €
Totaal eigen vermogen
00,00 €
Aflossing hypotheek
€/mes

Wat heeft dit gebied te bieden?

Wil je meer informatie?
Er zijn 4 mensen die deze woning bekijken