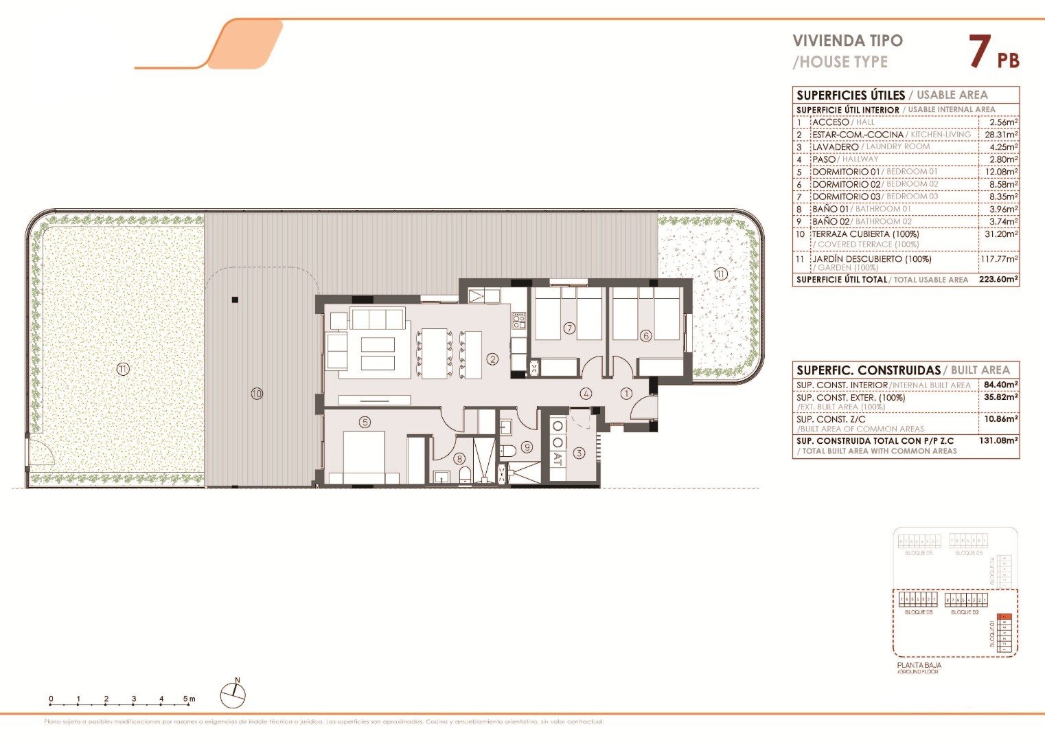
Ontwikkeling van een residentieel complex van 172 woningen in La Hoya - Torrevieja verdeeld over 6 blokken. De woningen zijn met 2 of 3 slaapkamers, allemaal met 2 badkamers en hebben een zuidelijke of westelijke oriëntatie. De blokken zijn zo ingericht dat ze allemaal uitzicht hebben op de uitgestrekte gemeenschappelijke ruimtes. De woningen op de... begane grond met privé-tuinen, op de tussenverdiepingen met ruime terrassen en op de bovenste verdieping met met privé-zonneterrassen. De gemeenschappelijke ruimtes zijn ontworpen om een breed scala aan diensten en recreatieve ruimtes te bieden: Uitgebreide tuin met sierplanten, gemeenschappelijk zwembad voor volwassenen en kinderen, padelbanen, speelplaatsen voor kinderen, gym-ruimte, Spa-Wellness-ruimte, gezondheidsbevorderende openlucht fitnesstoestellen en een fietsenstallingen op diverse plaatsen. Er worden zonnepanelen geïnstalleerd om het stroomverbruik van de residentie te verminderen en de parkeerplaatsen hebben een pre-installatie voor laadtoestellen.
Torrevieja en het nabijgelegen La Hoya vormen samen een dynamische bestemming aan de Costa Blanca, die zowel natuurschoon als bruisend stadsleven combineert. Het is een plek waar je de Spaanse cultuur niet alleen ziet, maar ook proeft.
De Unieke Natuurlijke Rijkdom
Het gebied staat internationaal bekend om het spectaculaire Parque Natural de las Lagunas de La Mata y Torrevieja. Dit natuurpark is de thuisbasis van de beroemde zoutmeren, waarvan de Salina de Torrevieja periodiek een opvallende roze kleur aanneemt – een fenomeen veroorzaakt door algen en bacteriën. Je kunt hier uitstekend wandelen of fietsen om de zoutwinning en talloze vogelsoorten, waaronder statige flamingo's, te observeren. Voor een rustigere, groene ervaring is het Parque del Molino del Agua met zijn fossiele duinen en parasoldennen ideaal.
Het Culinair Hart: Zee en Zout
De keuken van Torrevieja is direct verbonden met de zee en de zoutwinning, wat zorgt voor eerlijke en verse gerechten. De absolute specialiteit is de 'natte' rijstschotel Arroz Caldero, een romig rijstgerecht gekookt in een krachtige visbouillon, vaak geserveerd met vis. Rijst is sowieso de basis van veel gerechten uit de regio, denk aan de vele varianten van Paella en Arroz a Banda. Dankzij de ligging aan zee zijn verse zeevruchten alomtegenwoordig. Probeer de lokale gezouten vissoorten, bekend als Salazones (zoals Mojama of gezouten tonijn), of de perfect bereide gegrilde vis. Voor een stevigere maaltijd is er de hartige stoofpot Cocido con pelotas, een traditioneel gerecht met grote, gekruide gehaktballen. Langs de boulevard en in de haven zijn talloze tapasbars en restaurants te vinden waar je deze lokale lekkernijen, vaak met een glas frisse lokale wijn, kunt proeven.
Strandleven, Historie en Stadsvermaak
De kustlijn biedt een gevarieerd aanbod aan stranden. Playa de La Mata trekt aan met zijn brede, uitgestrekte zandvlakte. Midden in de stad vind je de levendige stadsstranden zoals Playa del Cura. Historisch gezien is de stad voelbaar via de Dique de Levante, de lange pier met de vuurtoren, en in het Museo del Mar y de la Sal, dat de rijke zeevaartgeschiedenis toont.
Voor recreatie en vermaak is er eveneens volop keuze: het grote stadspark Jardín de las Naciones biedt groene ontspanning. De wekelijkse markt op vrijdag is een must-visit om lokale producten en sfeer op te snuiven. Bovendien is Torrevieja een perfecte uitvalsbasis voor golfliefhebbers, met diverse topbanen zoals Las Colinas op korte rijafstand.
Kortom, Torrevieja en La Hoya bieden de bezoeker een perfecte mix van unieke natuurlijke schoonheid, ontspannen stranddagen, culturele levendigheid én een smaakvolle reis door de mediterrane keuken.
In een straal van 5 km heeft men alle denkbare voorzieningen zoals: stranden van Torrevieja en La Mata, Commerciële Centra met boutiques, bars, restaurants en supermarkten, golfterreinen, banken, post, centro salud en universitaire hospitaal van Torrevieja, Quiron hospitaal, cosmetica en wellness centra etc. Het ligt op een zeer toegankelijke locatie en is bereikbaar vanuit de luchthaven van Alicante over de AP-7 in een 35-tal minuten, voor Murcia is dat in een 50-tal minuten.