Deze elegante villa, gelegen in een exclusieve en rustige woonwijk van Alfaz del Pi, biedt een verfijnde mediterrane levensstijl met royale ruimtes, privacy en een tijdloos design.
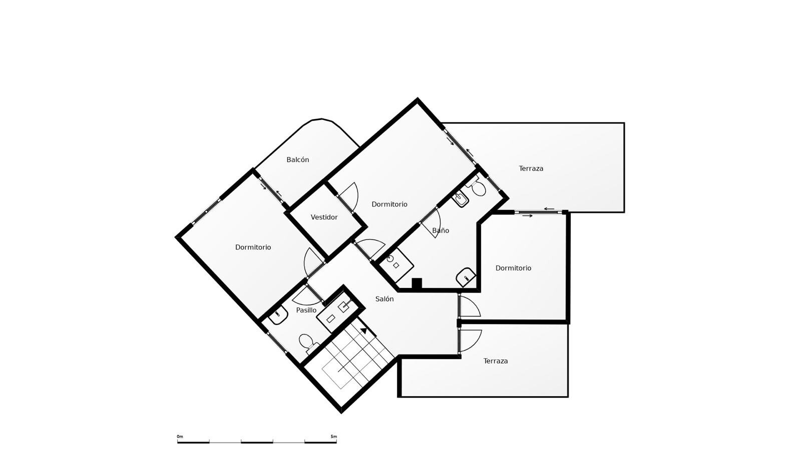
De woning beschikt over vier ruime slaapkamers en drie badkamers. De master suite is een privétoevluchtsoord met een en-suite badkamer en een op maat gemaakte kleedkame...r. Een slaapkamer op de begane grond biedt uitzonderlijk gemak, ideaal voor gasten of meergeneratiebewoning.
De ruime woon- en eetkamer baadt in natuurlijk licht en sluit harmonieus aan op een volledig uitgeruste, aparte keuken, aangevuld met een aparte wasruimte. De indeling van het interieur is zorgvuldig ontworpen om comfort, functionaliteit en ingetogen elegantie te combineren.
Op een perceel van 850 m² zijn de buitenruimtes ontworpen voor een uitzonderlijke levensstijl onder de mediterrane zon. De woning beschikt over een privézwembad, een volledig uitgeruste buitenkeuken, recreatiegebieden en royale terrassen met een open panoramisch uitzicht – perfect om te entertainen of te ontspannen in de buitenlucht.
Een ruime garage met plaats voor minstens vijf auto's voegt extra waarde toe en biedt de mogelijkheid om te worden omgebouwd tot een apart gastenverblijf of personeelsverblijf.
Belangrijke kenmerken zijn onder andere:
Oliegestookte radiatorverwarming
Airconditioning (warm en koud) in de gehele woning
Hoogwaardige draai-kiepramen van PVC
Deze stijlvolle villa verkeert in onberispelijke staat en is ideaal als hoofdverblijf of als exclusief vakantiehuis aan de Costa Blanca. De villa is aantrekkelijk voor internationale kopers die op zoek zijn naar privacy, ruimte en een verfijnde levensstijl aan de kust.