Maak kennis met Villa Alba, een exclusieve villa met een eigentijds design, gelegen in een woonwijk in Altea aan de gewilde noordkust van de Costa Blanca.
Ontworpen voor veeleisende kopers die waarde hechten aan moderne architectuur, privacy en een spectaculair uitzicht op de Middellandse Zee, biedt deze elegante woning de perfecte balans tussen c...omfort, stijl en functionaliteit.
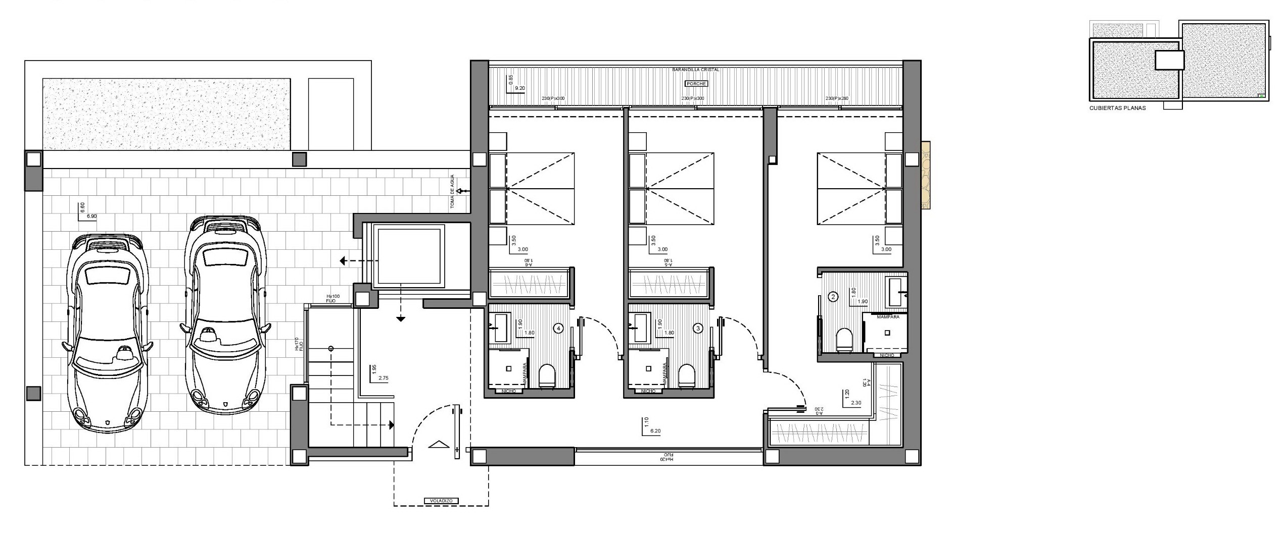
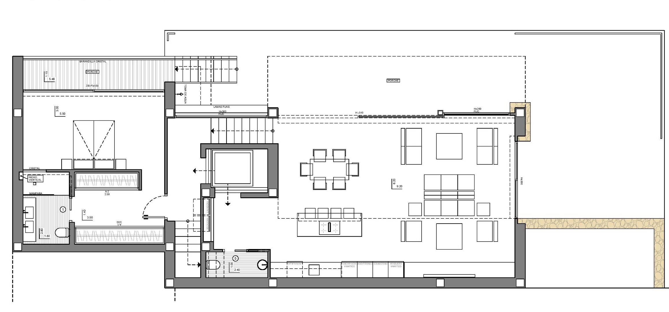
De villa is verdeeld over twee zorgvuldig ontworpen verdiepingen en beschikt over vier ruime slaapkamers, elk met een eigen en-suite badkamer, een lichte open woon- en eetkamer met een volledig geïntegreerde, moderne keuken en een prachtig hoofdterras met overloopzwembad, waardoor binnen- en buitenleven naadloos in elkaar overvloeien met een panoramisch uitzicht op zee.
Alle belangrijke woonruimtes zijn op het zuidoosten gericht, met uitzicht op zee, en hebben directe toegang tot de terrassen, waardoor optimaal gebruik wordt gemaakt van natuurlijk licht en de verbinding met de mediterrane omgeving.
De woning omvat tevens een overdekte garage voor twee auto's met voorbereiding voor een laadpunt voor elektrische voertuigen, evenals aerothermische klimaatregeling, een domoticasysteem en zonnepanelen, wat zorgt voor een hoge energie-efficiëntie, duurzaamheid en comfort het hele jaar door.
De essentie van het mediterrane leven
Altea is een van de meest charmante stadjes aan de Costa Blanca, bekend om zijn pittoreske oude binnenstad met geplaveide straatjes en witgekalkte gevels die uitkijken over de Middellandse Zee.
Altea is meer dan alleen een bestemming; het vertegenwoordigt een levensstijl. Hier genieten de inwoners van een unieke combinatie van zee, natuur, gastronomie en cultuur op hun best.
De iconische witte huizen en de internationaal erkende kerk met blauwe koepel – een symbool van de stad – zijn slechts het begin van de schoonheid die achter elke hoek wacht. Van rustige kustwandelingen tot levendige lokale restaurants, kunstgalerieën en traditionele markten, Altea biedt het hele jaar door een authentieke mediterrane ervaring.