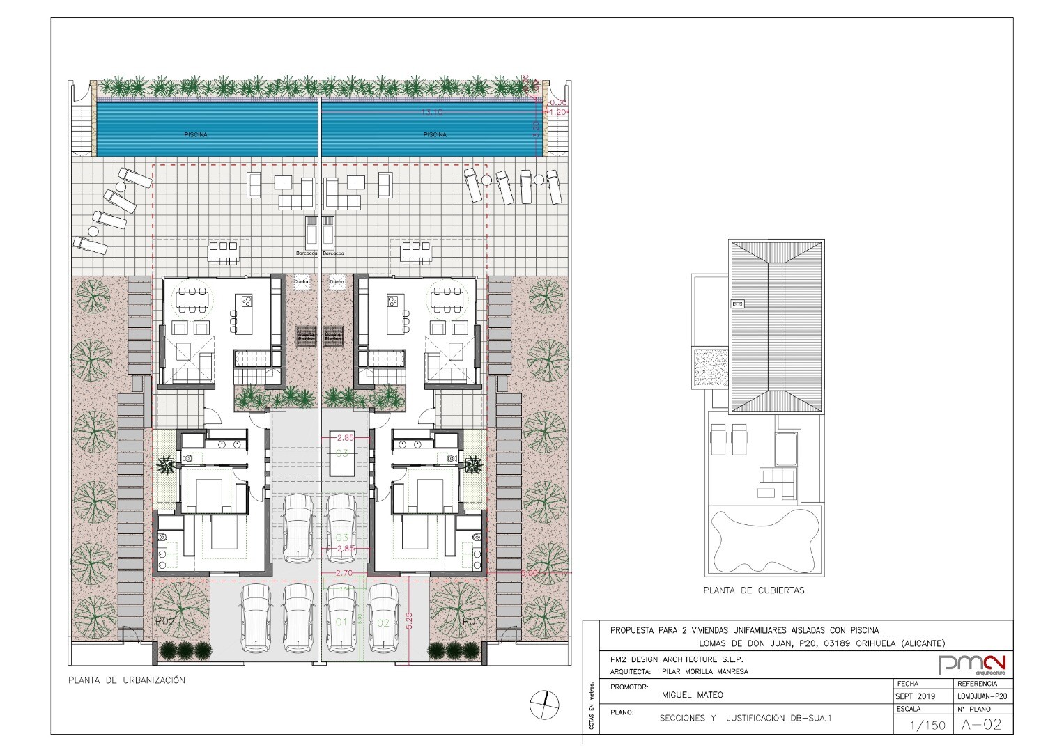
Wij hebben het genoegen 2 geweldig gelegen villa's aan te bieden met mooie percelen, privézwembaden en prachtig uitzicht.
Bij het betreden van het perceel vindt u een dubbele parkeerplaats. U heeft twee wandelpaden richting de ingang van de villa, waar u uitkijkt op het terras en het natuurlijke groene parkgebied voor de villa's.
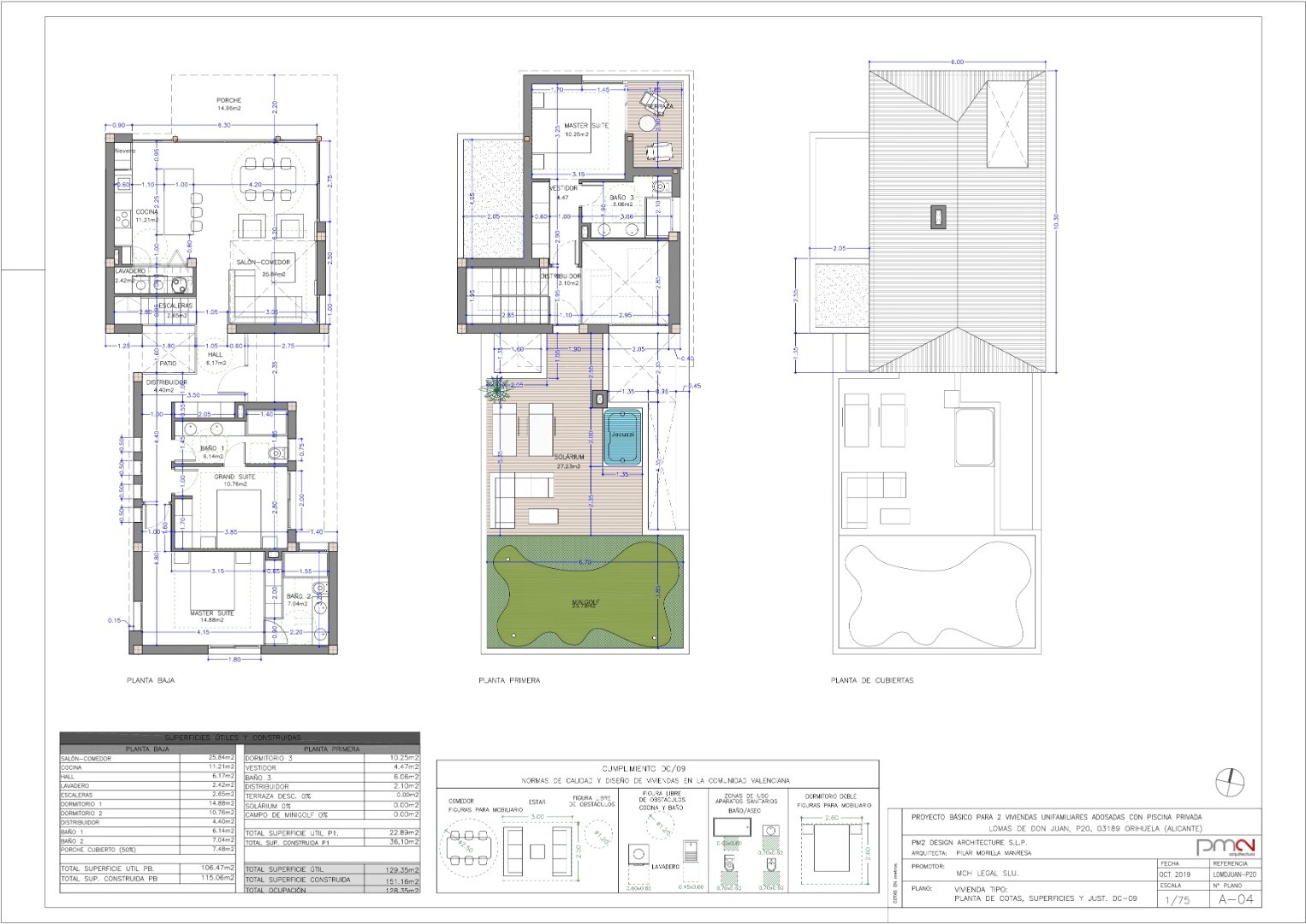
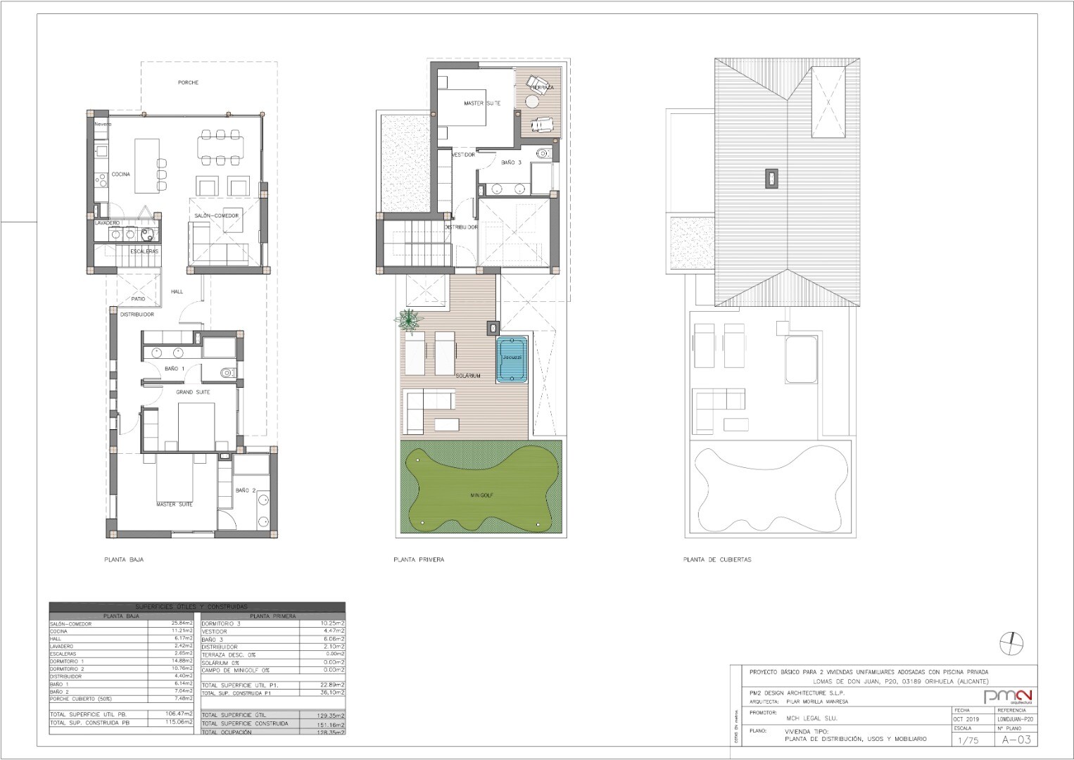
Bij het betreden... van de villa wordt uw aandacht getrokken naar de natuurstenen muur in de entree en in de woonkamer. Vanuit de entree heeft u aan de ene kant twee tweepersoons slaapkamers en twee badkamers. Een van de slaapkamers heeft een en-suite badkamer. Aan de andere kant vindt u de open keuken, eethoek en woonkamer. Vanuit de grote ramen richting het terras en het dubbele plafond in de woonkamer krijg je veel natuurlijke lichtinval.
Vanuit het eetgedeelte en de keuken heeft u toegang tot een groot terras met een privézwembad voor het groene natuurpark "Parque Natural de Lomas de Don Juan". Het terras heeft een buitenkeuken en een bbq-ruimte. Het privézwembad is ontworpen met een infinity-look en meet 3,2 x 13 meter.
Achter de keuken brengt een trap u naar de eerste verdieping. Hier vindt u aan de ene kant een groot terras op het zuiden, vanwaar u uitkijkt over de Middellandse Zee en de omgeving. Aan de andere kant vindt u de hoofdslaapkamer, met en-suite badkamer en een klein terras.
Men kan kiezen uit 3 verschillende vloertegels, keukenkleuren en werkbladen - allemaal van Porcelanosa.
Lomas de Don Juan is gunstig gelegen dicht bij alles in Orihuela Costa. Binnen slechts 5 minuten bent u op de stranden van La Zenia, Cala Capitan, Cabo Roig of Campo Amor, evenals het populaire winkelcentrum Zenia Boulevard.
U vindt de golfbanen Villamartin, Las Ramblas, Campoamor en Las Colinas binnen 10 minuten. Nog eens 15 golfbanen binnen 20 minuten rijden.