Herenhuis te koop in Gran Alacant voor € 280.000 (AL04)

Bungalows met 1, 2 of 3 slaapkamers, met 1 of 2 badkamers. Kies de beste indeling voor uw huis en maak deze perfect voor uw gezin. Gemeenschappelijk zwembad en dicht bij alle diensten.

280.000 €
Ref. AL04
Gran Alacant, Alicante Kaart weergeven

Basisfuncties

m<sup>2</sup> behuizing
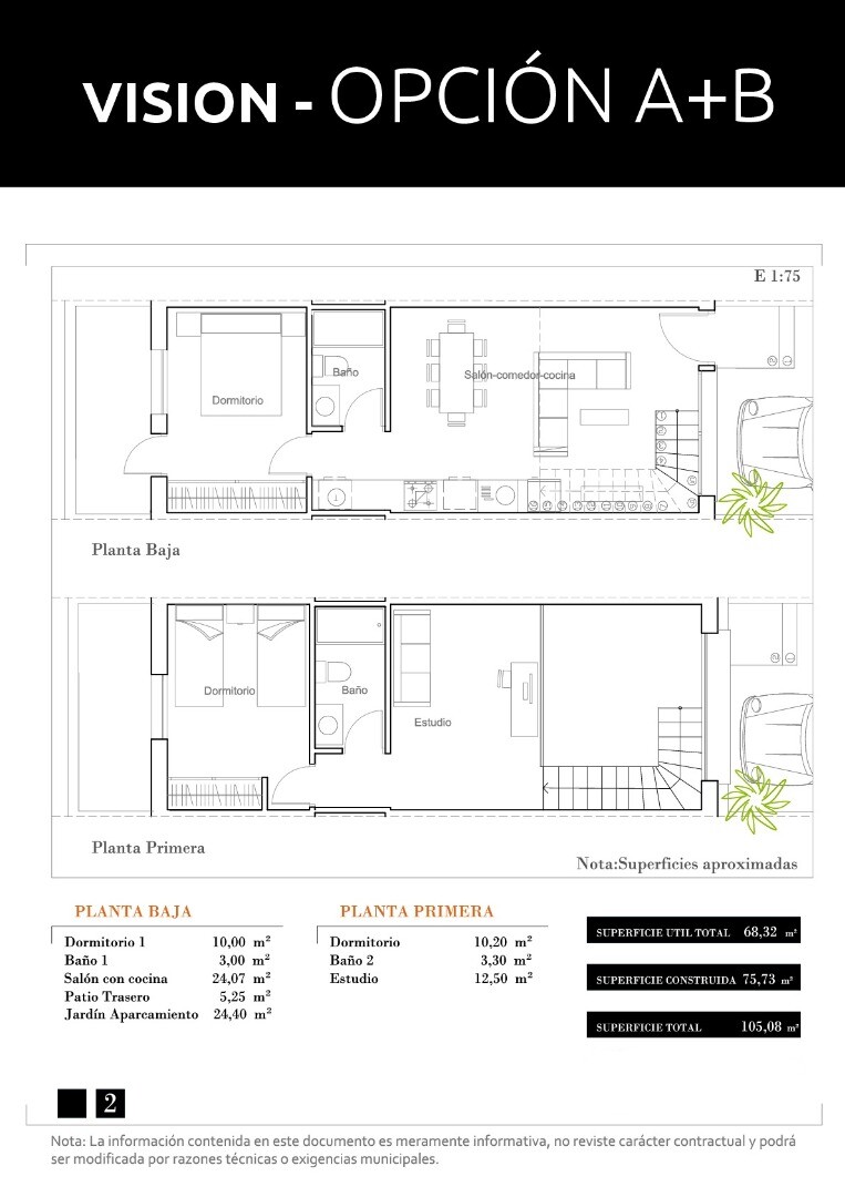
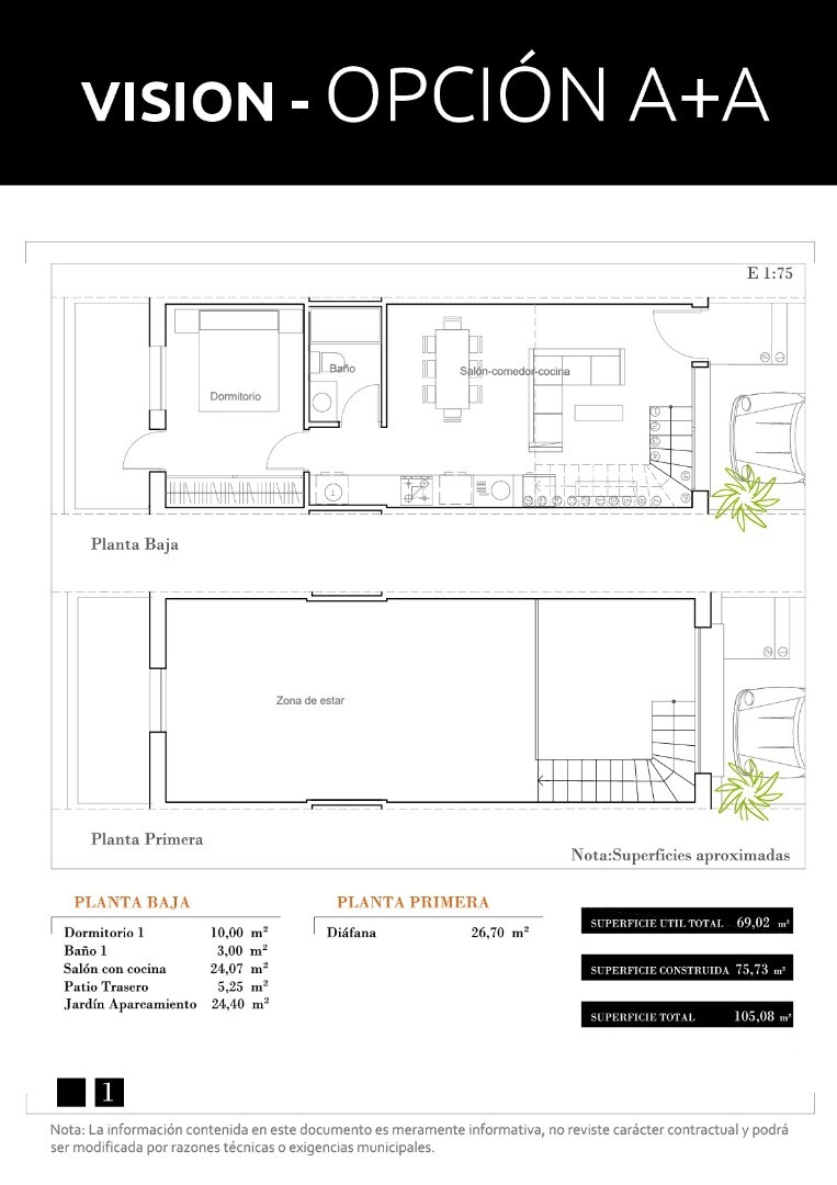
75 m2 behuizing
Slaapkamers
2 Slaapkamers
Badkamers
1 Badkamers
Afstand tot de zee
Strand op 3 km
Gemeenschappelijk zwembad
Tuin
Kasten
Dubbel glas

Beschrijving

Wil je meer informatie? Minder informatie
We presenteren u een huis, in een van de beste delen van Costa Blanca. Heel dicht bij Alicante en de luchthaven, het strand met blauwe vlag, supermarkten, bars, restaurants en nog veel meer dingen! De verschillende mogelijkheden van interieurverdeling geven veel speelruimte voor elke behoefte van verschillende en verschillende families. Met een moo...

Locatie

Gran Alacant, Alicante
Ben je geïnteresseerd in deze woning en wil je meer informatie?

Uw hypotheek simuleren

Resterende niet-gefinancierde prijs
00,00 €
Kosten bij benadering:
00,00 €
Totaal eigen vermogen
00,00 €
Aflossing hypotheek
€/mes
Wil je meer informatie?
Er zijn 7 mensen die deze woning bekijken